28211 Bremen, Mehrfamilienhaus zum Kauf
Kontaktdaten
-
NameFrau Perschia Zandi
-
PositionImmobilienkauffrau
-
FirmaSchichtel & Partner Immobilien
-
AnschriftWachmannstraße 73
28209 Bremen -
E-Mail
-
E-Mail
-
Telefon
-
Telefon
-
Mobil
Objektdaten
-
Objekt-IDSP469J
-
ObjekttypenHaus, Mehrfamilienhaus
-
Adresse28211 Bremen
-
Wohneinheiten3
-
Wohnfläche ca.490 m²
-
Nutzfläche ca.62 m²
-
Grundstück ca.344 m²
-
Zimmer15,5
-
Schlafzimmer11
-
Badezimmer2
-
Separate WC4
-
Balkone2
-
Terrassen3
-
HeizungsartZentralheizung
-
Wesentlicher EnergieträgerGas
-
Baujahr1903
-
Zustandgepflegt
-
Käuferprovision7,14 % (inkl. 19,00 % MwSt.) vom Käufer
-
Kaufpreis1.348.999 EUR
Ausstattung / Merkmale
- ✓ Balkon
- ✓ Kamin
- ✓ Keller
- ✓ Separates WC
- ✓ Terrasse
- ✓ Wintergarten
Energieausweis
-
EnergieausweistypVerbrauchsausweis
-
Gültig bis13.09.2028
-
GebäudeartWohngebäude
-
Baujahr lt. Energieausweis2017
-
PrimärenergieträgerGas
-
Endenergieverbrauch125,00 kWh/(m²·a)
-
EnergieeffizienzklasseD
Objektbeschreibung
Beschreibung
Ein traumhaftes Altbremer Mehrfamilienhaus mit vielseitigem Nutzungspotenzial wartet darauf, in neue Hände gelegt zu werden. Errichtet im Jahre ca. 1903 erstreckt sich diese beeindruckende Immobilie auf einer gigantischen Wohnfläche von ca. 490 m² und befindet sich auf einem ca. 344 m² großen Grundstück.
Die mit kunstvollem Stuck verzierte Außenfassade verleiht der Immobilie neben der Veranda vor der majestätischen Rundbogentür seinen unverwechselbaren Charme und beim Betreten des Hauses werden Sie von einem eindrucksvollen Windfang aus echtem Marmor empfangen, der den Weg in die lichtdurchfluteten Räume ebnet. Breite Treppenhäuser mit eleganten Handläufen aus Holz und ein Oberlicht dürfen hier nicht fehlen.
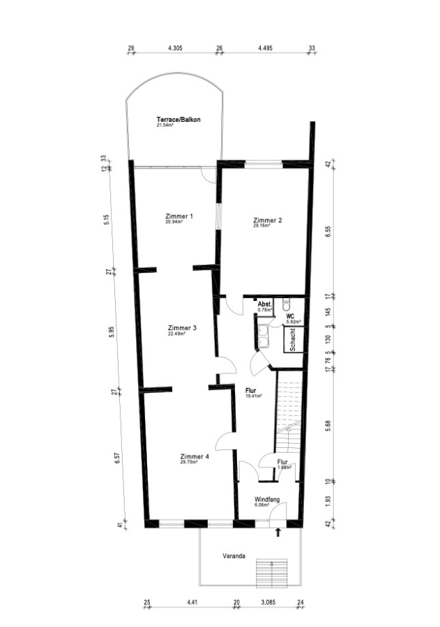
Auf insgesamt vier Etagen erwarten Sie drei großzügige Einheiten: Im Souterrain und Hochparterre finden Sie acht Zimmer sowie einen Wintergarten mit Austritt zum Garten, während das Obergeschoss mit weiteren Zimmern, einer Küche, Sanitäranlagen und einem einladenden Balkon ausgestattet ist. Das Dachgeschoss bietet zudem eine gepflegte Einbauküche, ein Duschbad und eine traumhafte Dachterrasse, von der sich die frischen Blüten des Frühlings erblicken lassen.
Die Bodenbeläge variieren zwischen stilvollem Fischgrätparkett, hochwertigen Echtholzdielen, Laminat, Teppich und Fliesen. Exponierte Deckenhöhen von bis zu ca. 4 m mit kunstvollem Stuck verleihen den Räumen den besonderen Altbaucharme und abschließbare Isolierfenster aus Holz von ca. 2007 sowie Innentüren aus echtem Massivholz runden das hochwertige Ambiente ab.
Drei sonnige Balkone und ein Wintergarten der zum grünen Garten mit prächtigen Magnolienbäumen führt, bilden eine wahre Oase inmitten der pulsierenden Hansestadt Bremen.
Erst im Jahre ca. 2017 wurde eine Gaszentralheizung des Herstellers Vaillant installiert, während historische Heizkörper mit Reliefmustern den nostalgischen Charme des Hauses unterstreichen.
Die Elektrik ist dreiadrig ausgeführt und die Trinkwasserleitungen wurden ca. 2020 erneuert.
Das Souterrain könnte als separate Einheit vom Hochparterre abgeteilt werden – ideal für Kapitalanleger oder zur Eigennutzung.
Zudem sind die Wohneinheiten des gesamten Hauses leerstehend und bieten enormes Potenzial: Ob als Einfamilienhaus oder weiterhin als Mehrfamilienhaus, könnten hier Ihre Wohnträume Wirklichkeit werden.
Das Haus ist nicht nach WEG geteilt und befindet sich in einer zentralen Wohnstraße in begehrter Lage Bremens.
Eine derartige Chance auf eine Immobilie wie diese ist eine Seltenheit. Seien Sie daher schnell – wir freuen uns auf Sie.
Ausstattung
- Repräsentatives Altbremerhaus mit 3 Einheiten
- Baujahr: ca. 1903
- Grundstücksfläche: ca. 344 m²
- Wohnfläche: ca. 490 m²
- Nutzfläche: ca. 63 m²
- Einzigartige Außenfassade mit Stuckverzierung
- Historische Rundbogenhaustür aus Mahagoniholz
- Beeindruckender Windfang aus echtem Marmor
- Breite, erhabene Treppenhäuser mit Handläufen aus Holz
- Oberlicht im Treppenhaus für Tageslichteinfall
- Drei großflächige Einheiten auf insgesamt vier Etagen
- Souterrain und Hochparterre mit 8 Zimmern und beheizten Wintergarten
- Obergeschoss mit 3,5 Zimmern, Küche, WC und Balkon
- Dachgeschoss mit 4 Zimmern, Einbauküche, Duschbad und Dachterrasse
- Insgesamt sind zwei Bäder und diverse WCs vorhanden
- Bodenbeläge: Fischgrätparkett, Echtholzdielen, Laminat, Teppich
- Gut erhaltene Casa Moro Fliesen im Wintergarten
- Exponierte Deckenhöhe von bis zu ca. 4 m mit Stuck
- Abschließbare Isolierfenster aus Holz von ca. 2007
- Innentüren aus hochwertigem Massivholz
- Reichlich viel Nutzfläche und einige Abstellräume vorhanden
- Große Veranda vor dem Haus
- Zwei Sonnenbalkone mit wunderbarer Ost-Ausrichtung
- Dachterrasse mit Blick über das Gete-Viertel
- Gepflasterte Terrasse vor dem Gartenzimmer
- Garten mit viel Grün und einem Magnolienbaum
- Traumoase inmitten der Hansestadt Bremen
- Gaszentralheizung von ca. 2017
- Historische Heizkörper mit Reliefmuster
- Elektrik dreiadrig und Durchlauferhitzer in den Bädern
- Trinkwasserleitungen von ca. 2020
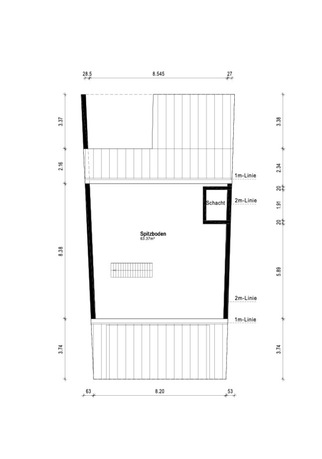
- Spitzboden als weitere Wohnfläche ausbaufähig
- Gesamtes Haus leerstehend und bereit zur Vermietung
- Souterrain könnte als vierte Einheit vom Hochparterre abgeteilt werden
- Das Haus ist nicht nach WEG geteilt
- Potenzial: Als Einfamilienhaus oder weiterhin als Mehrfamilienhaus nutzbar
- Optimale Nutzungsmöglichkeiten für alle Personengruppen
- Parkmöglichkeiten direkt vor dem Haus vorhanden
- Zentrale Wohnstraße in begehrter Lage Bremens
- Beliebtes Stadtviertel mit ideal angrenzender Infrastruktur
Lage
Der Stadtteil Gete, ein lebendiges und familienfreundliches Viertel Bremens, zählt etwa 10.000 Einwohner und besticht durch seine harmonische Verbindung von urbanem Leben und naturnahen Rückzugsorten. Die begehrte Wohnstraße ist geprägt von historischen Altbremer Häusern, die dem Stadtteil seinen besonderen Charme verleihen.
Gete ist bekannt für seine offene Nachbarschaft und die hohe Lebensqualität, die sowohl Familien als auch Investoren anzieht. Die Lage des Mehrfamilienhauses ist besonders vorteilhaft, da sie direkt an die beliebten Stadtteile Schwachhausen und Fesenfeld grenzt.
In dieser Nachbarschaft sind eine Vielzahl an Freizeitmöglichkeiten, kulturellen Einrichtungen sowie Einkaufsmöglichkeiten vorhanden und die Bremer Innenstadt ist nur ca. 4 Kilometer entfernt.
Für Kunst- und Theaterliebhaber ist das „Theater Bremen“ ein besonderes Highlight mit einem abwechslungsreichen Programm. Der Bürgerpark Bremen, welcher nur ca. 3 Kilometer entfernt liegt, lädt zu ausgedehnten Spaziergängen oder sportlichen Aktivitäten ein und stellt einen perfekten Ort für gemeinsame Ausflüge dar.
Familien profitieren von einer ausgezeichneten Bildungsinfrastruktur: In unmittelbarer Nähe befinden sich mehrere Schulen, darunter die Grundschule Gete sowie das Kippenberg Gymnasium und das Hermann-Böse-Gymnasium. Diese Einrichtungen sind in weniger als ca. 10 Minuten mit dem Fahrrad zu erreichen und bieten ein breites Spektrum an Bildungsangeboten.
Die Einkaufsmöglichkeiten sind vielfältig und bequem erreichbar. Supermärkte wie Edeka und Rewe decken den täglichen Bedarf ab, während das Viertel, die Innenstadt und das Einkaufszentrum „Weserpark“ (ca. 6 Kilometer Entfernung) eine breite Palette an Geschäften, Boutiquen und Gastronomie bietet.
Die ärztliche Versorgung ist durch zahlreiche Arztpraxen in der Umgebung gewährleistet, sodass sich die nächstgelegene Allgemeinarztpraxis nur ca. 800 Meter entfernt befindet. Das Klinikum Bremen-Mitte sorgt neben dem St. Joseph Stift zudem für eine umfassende medizinische Betreuung.
Eine schnelle Verbindung ins Stadtzentrum sowie zu anderen Stadtteilen Bremens ermöglicht die Straßenbahnhaltestelle „ Hollerallee“, die nur wenige Gehminuten entfernt liegt. Mit der Straßenbahn erreichen Sie den Bremer Hauptbahnhof sowie die Innenstadt in ca. 10 Minuten.
Zusätzlich sind die Autobahnen A1 und A27 zeitnah zu erreichen, was eine unkomplizierte Anreise in umliegende Städte wie Hamburg oder Oldenburg ermöglicht.
Insgesamt bietet der Stadtteil unseres Altbremer Hauses eine ideale Kombination aus urbanem Lebensstil, kulturellem Angebot und naturnahen Freizeitmöglichkeiten. Die Voraussetzungen für Familien auf der Suche nach einem neuen Zuhause sowie für Investoren, die von der attraktiven Lage profitieren, sind somit perfekt.
Vereinbaren Sie gerne einen Besichtigungstermin.
28211 Bremen, Deutschland (auf Google Maps ansehen)





























