28325 Bremen, Einfamilienhaus zum Kauf
Kontaktdaten
-
NameFrau Perschia Zandi
-
PositionImmobilienkauffrau
-
FirmaSchichtel & Partner Immobilien
-
AnschriftWachmannstraße 73
28209 Bremen -
E-Mail
-
E-Mail
-
Telefon
-
Telefon
-
Mobil
Objektdaten
-
Objekt-IDSP788B
-
ObjekttypenEinfamilienhaus, Haus
-
Adresse28325 Bremen
-
Wohnfläche ca.165,69 m²
-
Nutzfläche ca.87,78 m²
-
Grundstück ca.1.006 m²
-
Zimmer5
-
Schlafzimmer4
-
Badezimmer2
-
Terrassen1
-
Wesentlicher EnergieträgerÖl
-
Baujahr1962
-
Zustandteil-/vollsaniert
-
Außenstellplätze3
-
Garagenstellplatz1 Stellplatz
-
Käuferprovision3,57 % (inkl. 19,00 % MwSt.) vom Käufer
-
Kaufpreis534.500 EUR
Ausstattung / Merkmale
- ✓ Kamin
- ✓ Keller
- ✓ Terrasse
Energieausweis
-
EnergieausweistypBedarfsausweis
-
Gültig bis12.03.2036
-
GebäudeartWohngebäude
-
Baujahr lt. Energieausweis1988
-
PrimärenergieträgerÖl
-
Endenergiebedarf105,20 kWh/(m²·a)
-
EnergieeffizienzklasseD
Objektbeschreibung
Beschreibung
Stilvolle Architektur, moderne Technik und ein beeindruckendes Grundstück vereinen sich in diesem Einfamilienhaus aus dem Jahre ca. 1962. Nach umfassenden Modernisierungen von ca. 2014, präsentiert sich die Immobilie heute als hochwertiger Wohnort mit vielseitigen Nutzungsmöglichkeiten.
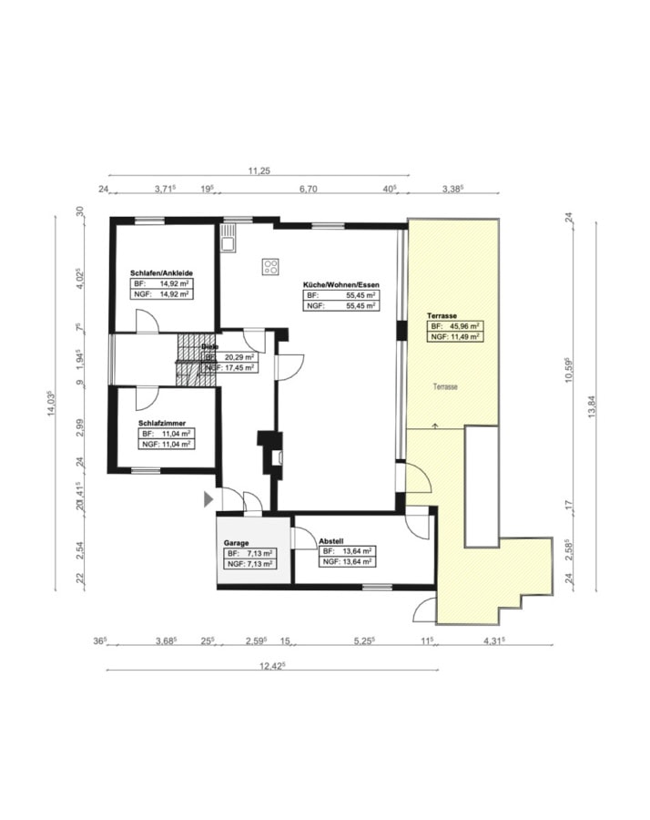
Auf einem weitläufigen Grundstück von ca. 1.006 m² stehen rund 166 m² Wohnfläche sowie ca. 88 m² Nutzfläche zur Verfügung. Die Split-Level-Bauweise verleiht dem freistehendem Haus eine besondere architektonische Dynamik und schafft eine angenehme Verbindung aus kurzen Wegen und Offenheit.
Viel Lichteinfall finden Sie in Wohn- und Essbereich, bei dem sowohl die Fußbodenheizung als auch die Deckenhöhen von bis zu ca. 3,20 m, integrierte Spots und große Fensterflächen für ein beeindruckendes Raumgefühl mit Blick in den Garten sorgen. Ein effizienter Kaminofen mit stolzen 14 kW unterstützt die Wärmeversorgung und sorgt für einen echten Hingucker.
Die offene Einbauküche mit Kochinsel gestaltet sich als geselliger Mittelpunkt dieses Objekts. Hochwertige Elektrogeräte von Bosch und AEG gewährleisten dabei Funktionalität mit zeitgemäßem Design.
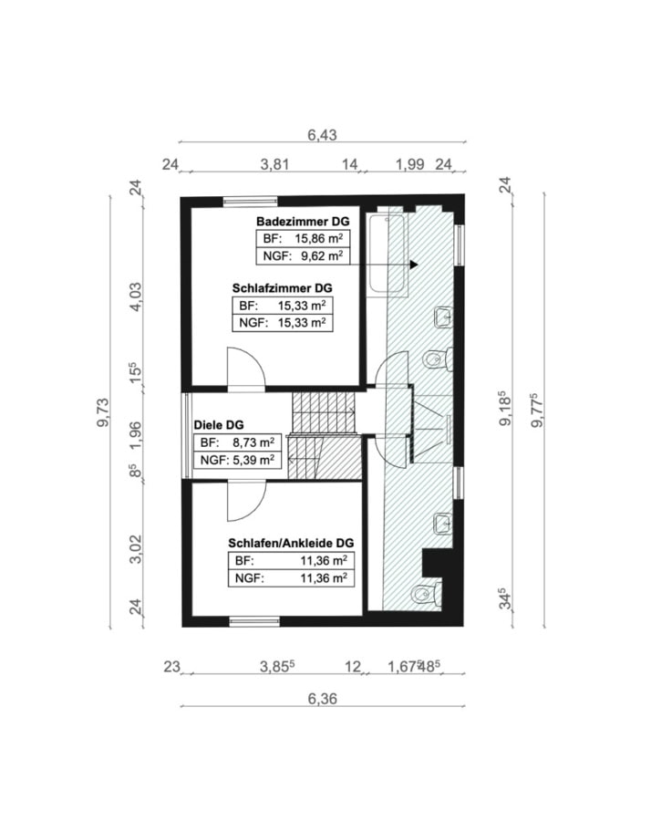
Vier helle Schlafzimmer verteilen sich auf die schnell erreichbaren Split-Ebenen und lassen genügend Nutzungsspielraum, um sie als Ankleide, Gästezimmer oder Homeoffice zu gestalten.
Besonders interessant ist die Aufteilung der beiden Tageslichtbäder, die durch eine gemeinsame Dusche verbunden sind. Während ein Badezimmer zusätzlich mit einer Eckbadewanne ausgestattet ist, verfügt das zweite Bad über ein Pissoir.
Hochwertige Materialien prägen das gesamte Haus und schaffen durch Echtholzparkett, Vinyl, Fliesen und Teppich eine angenehme Wohnatmosphäre. Dreifachverglaste Fenster von ca. 2014, das gedämmtes Dach, die Lüftungsanlage mit Wärmerückgewinnung sowie die moderne dreiadrige Elektrik mit FI-Schutzschalter und Smart-Home-System von Homematic sorgen für zeitgemäßen Luxus.
Im Außenbereich lädt die frisch gepflasterte Terrasse mit Süd-Ausrichtung und elektrischer Markise zum Verweilen ein. Das eigentliche Highlight bildet jedoch die überdachte Außenküche mit gemauertem Pizzaofen, Gasanschluss, Grill und Kühlschrank. Nach Vereinbarung sind die verbauten Geräte bereits im Kaufpreis enthalten.
Einen parkähnlichen Charakter verleihen die Walnuss-, Kirsch- und Birnbäume, die den Garten säumen. Zudem erleichtern Grundwasseranschluss, Sprinkleranlage und ein großer Schuppen die Pflege und Nutzung der Grünanlagen.
Bis zu drei Stellplätze stehen auf dem Grundstück zur Verfügung und die ehemalige Garage wurde im Jahr ca. 2025 in zwei praktische Abstellräume umgebaut.
Zusammenfassend wartet hier ein Zuhause in begehrter Lage auf Sie, das Großzügigkeit und Lebensqualität auf besondere Weise vereint.
Ausstattung
- Hochwertig saniertes Einfamilienhaus mit großem Garten
- Baujahr: ca. 1962
- Wohnfläche: ca. 166 m²
- Nutzfläche: ca. 88 m²
- Grundstücksfläche: ca. 1.006 m²
- Zweischaliges Ytong-Mauerwerk inklusive Dämmung
- Familienfreundliche Aufteilung durch Split-Level-Bauweise
- Einladender Wohnflur mit integrierter Garderobe und hellen Fliesen
- Offener Wohn- und Essbereich mit Fensterfront und Kaminofen
- Insgesamt vier helle Schlafzimmer mit je ca. 11–15 m²
- Verschiedene Nutzungsmöglichkeiten der Zimmer als Ankleide oder Büro
- Stilvolle Einbauküche mit Insel und E-Geräten von Bosch und AEG
- Zwei cremefarbene Tageslichtbäder durch gemeinsame Dusche verbunden
- Ein Bad mit Eckwanne, das Zweite mit zusätzlichem Pissoir
- Bodenbeläge: Echtholzparkett, Vinyl, Fliesen und Teppich
- Exponierte Deckenhöhe bis zu ca. 3,20 m mit Spotlights
- Dreifachverglaste Kunststofffenster aus dem Jahr ca. 2014
- Fenster bereits mit Kontaktvorrichtung für Alarmanlage versehen
- Zweifachverglaste Kunststofffenster im Keller und Garage teilweise von ca. 2025
- Elegante und weiße Innentüren aus Holz inklusive Holzzargen
- Gedämmtes Dach von ca. 2014 mit einem Leitwert von WLG 035
- Erstklassiges Dämmmaterial von 220 mm Isover und Dampfbremse
- Öl-Brennwertkessel des Herstellers Viessmann von ca. 1988
- Warmwasserversorgung durch Ölheizung abgedeckt
- Angenehme Fußbodenheizung im Wohnbereich und Bädern
- Heizkörper für zukünftigen Heizungstausch bereits größer installiert
- Niedrige Vorlauftemperatur der neuen Heizkörper
- Austausch und Dämmung sämtlicher Rohre und Leitungen
- Effizienter Kamin mit 14 kW inklusive Wärmetauscher im Wohnbereich
- Lüftungsanlage inklusive Wärmerückgewinnung (2 von 5 bereits in Betrieb)
- Dreiadrige Elektrik mit FI-Schutzschalter und Smart-Home-System von Homematic
- Kabelanschlüsse, TV und LAN in jedem Zimmer verfügbar
- Videoüberwachung im Außenbereich des Hauses
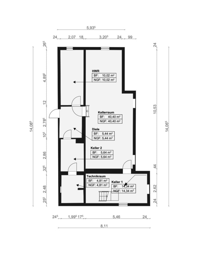
- Vollunterkellerung mit vier Räumen, einer davon mit Bad- und Duschanschlüssen
- Praktischer Hauswirtschaftsraum mit Waschmaschinenanschluss und Fenster
- Neue, gepflasterte Terrasse mit elektrischer Markise und Ausrichtung nach Süd/Süd-Westen
- Überdachte Außenküche mit gemauertem Pizzaofen, Gasanschluss, Kühlschrank und Grill
- Außenküche nach Vereinbarung im Kaufpreis enthalten
- Weitläufiges Grundstück mit Wallnuss-, Kirsch- und Birnenbäumen
- Garten mit Grundwasseranschluss, Sprinkleranlage und großem Schuppen
- Garage im Jahr ca. 2025 auf zwei praktische Abstellräume geteilt
- Bis zu drei Stellplätze auf dem Grundstück nutzbar
- Begehrte Lage mit ideal angrenzender Infrastruktur
- Einkaufszentrum Weserpark in ca. 10 Minuten erreichbar
- Ruhig eingebetteter Rückzugsort im Nordosten Bremens
Lage
Diese herausragende Immobilie befindet sich im Bremer Stadtteil Osterholz, einem familienfreundlichen Wohngebiet im Nordosten der Hansestadt. Die Umgebung ist geprägt von ruhigen Wohnstraßen, gepflegten Häusern und großzügigen Grünflächen, die dem Quartier eine angenehme Atmosphäre verleihen.
Gleichzeitig profitieren Bewohner von einer stark ausgebauten Infrastruktur und kurzen Wegen zu allen wichtigen Einrichtungen des täglichen Lebens. Mit dem Klinikum Bremen-Ost befindet sich zudem eine der bekanntesten medizinischen Versorgungseinrichtungen der Region in kurzer Distanz.
Osterholz zählt zu den gefragten Wohnlagen im Bremer Osten und grenzt unter anderem an die Stadtteile Oberneuland, Blockdiek, Tenever, Ellenerbrok-Schevemoor und Mahndorf. Diese Lage ermöglicht eine hervorragende Verbindung zu weiteren Wohnquartieren, Gewerbestandorten sowie zu vielfältigen Einkaufs- und Freizeitmöglichkeiten innerhalb der Stadt.
Besonders hervorzuheben ist die Nähe zum Weserpark, einem der größten Einkaufszentren Norddeutschlands. Der Weserpark bietet mit über hundert Geschäften eine beeindruckende Vielfalt aus Mode-, Technik- und Lifestyle-Angeboten. Ergänzt wird das umfangreiche Einzelhandelsangebot durch zahlreiche Restaurants sowie Dienstleistungsangebote.
Im direkten Umfeld finden sich zusätzliche Einkaufsmöglichkeiten für den täglichen Bedarf. Supermärkte, Bäckereien, Drogerien und kleinere Fachgeschäfte sind schnell erreichbar und sorgen für kurze Wege im Alltag. Cafés, gastronomische Betriebe und verschiedene Dienstleister tragen zusätzlich zu einem lebendigen und gut versorgten Stadtteil bei.
Die Anbindung an den öffentlichen Nahverkehr ist hervorragend. Mehrere Bus- und Straßenbahnlinien befinden sich in fußläufiger Entfernung und ermöglichen eine direkte Verbindung in die Bremer Innenstadt, zum Weserpark sowie in andere Stadtteile.
Für Autofahrer bietet die Lage ebenfalls ideale Voraussetzungen. Über die nahegelegenen Hauptverkehrsachsen gelangen Sie zügig zu den Autobahnen A27 und A1. Die Bremer Innenstadt ist je nach Verkehrslage in etwa 15 bis 20 Minuten erreichbar und der Weserpark in ca. 10 Minuten.
Familien profitieren von einer gut ausgebauten Bildungs- und Betreuungsstruktur. Verschiedene Kindertagesstätten, Grundschulen und weiterführende Schulen wie die Gesamtschule Bremen-Ost befinden sich in der näheren Umgebung und sind teilweise zu Fuß erreichbar.
Neben der ausgezeichneten Infrastruktur überzeugt Osterholz durch seinen hohen Freizeitwert. Grünanlagen, Parks und Naherholungsflächen laden zu Spaziergängen, sportlichen Aktivitäten oder entspannten Stunden im Freien ein.
Insgesamt präsentiert sich Bremen-Osterholz als Wohnstandort mit hoher Lebensqualität, einer gelungenen Verbindung aus ruhigem Wohnumfeld, hervorragender Versorgung, guter Verkehrsanbindung und vielfältigen Freizeitmöglichkeiten.
28325 Bremen, Deutschland (auf Google Maps ansehen)

































