28717 Bremen, Mehrfamilienhaus zum Kauf
Kontaktdaten

-
NameHerr Nikita Millers
-
PositionImmobilienkaufmann
-
FirmaSchichtel & Partner Immobilien
-
AnschriftWachmannstraße 73
28209 Bremen -
E-Mail
-
Telefon
-
Telefon
-
Mobil
Objektdaten
-
Objekt-IDSP634A
-
ObjekttypenHaus, Mehrfamilienhaus
-
Adresse28717 Bremen
-
Wohneinheiten5
-
Wohnfläche ca.338 m²
-
Nutzfläche ca.21 m²
-
Grundstück ca.842 m²
-
Zimmer12
-
Schlafzimmer7
-
Badezimmer5
-
Balkone1
-
Terrassen2
-
HeizungsartZentralheizung
-
Wesentlicher EnergieträgerGas
-
Baujahr1927
-
Zustandgepflegt
-
Käuferprovision5,95 % (inkl. 19,00 % MwSt.) vom Käufer
-
Mieteinnahmen (Soll)39.000 EUR pro Jahr
-
Kaufpreis599.900 EUR
Ausstattung / Merkmale
- ✓ Balkon
- ✓ Einliegerwohnung
- ✓ Kabel-/Sat-TV
- ✓ Teilunterkellert
- ✓ Terrasse
Energieausweis
-
EnergieausweistypBedarfsausweis
-
Gültig bis25.06.2033
-
GebäudeartWohngebäude
-
Baujahr lt. Energieausweis2023
-
PrimärenergieträgerGas
-
Endenergiebedarf117,26 kWh/(m²·a)
Objektbeschreibung
Beschreibung
Dieses Angebot vereint solide Altbausubstanz mit einem Neubauprojekt: Auf einem ca. 842 m² großen Grundstück steht ein gepflegtes, freistehendes Zweifamilienhaus von ca. 1927 – ergänzt durch eine bereits genehmigte Planung für einen modernen Neubau mit drei zusätzlichen Wohneinheiten.
Eine seltene Kombination, die sich für Kapitalanleger, Mehrgenerationenlösungen oder Eigennutzer mit Entwicklungsperspektive gleichermaßen eignet.
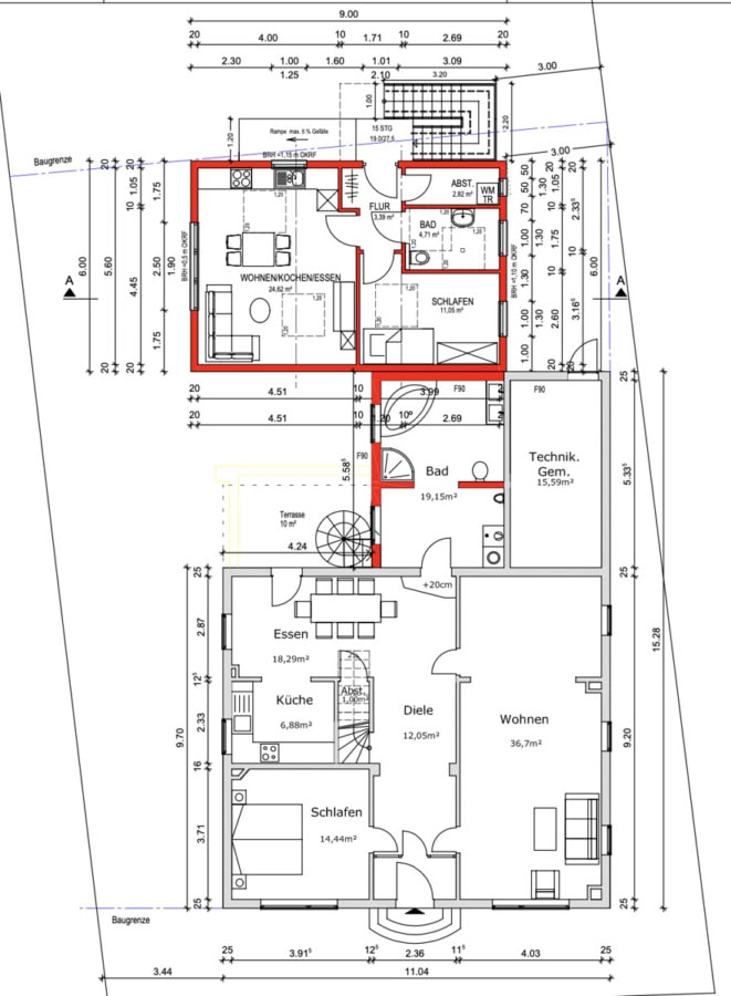
Der Altbau bietet derzeit zwei großzügige Wohneinheiten: ca. 120 m² im Erdgeschoss sowie ca. 80 m² im Obergeschoss. Beide Wohnungen können frei übergeben werden.
Die Ausstattung umfasst unter anderem eine hochwertige Einbauküche mit Marken-Elektrogeräten, ein Tageslichtbad mit Badewanne, Dusche und Bidet, zweifach verglaste Kunststofffenster, gepflegte Bodenbeläge aus Parkett, Laminat und Fliesen sowie teilüberdachte Terrassen.
Ein liebevoll angelegter Garten mit Südausrichtung und ein Teilkeller mit praktischer Abstellfläche bieten zusätzlichen Komfort im Alltag.
Das Highlight dieses Angebots liegt im rückwärtigen Grundstücksbereich: Für den dort geplanten Neubau liegt eine genehmigte Baugenehmigung vor. Der Eigentümer bietet an, den Anbau nach dem Verkauf in modularer Bauweise zu realisieren – inklusive aller Materialien und Bauleistungen, die vollständig im Kaufpreis enthalten sind.
Die Planung umfasst zwei identisch geschnittene Wohnungen mit jeweils ca. 54 m² Wohnfläche im Erd- und Obergeschoss sowie ein Apartment mit ca. 30 m² im Dachgeschoss. Die moderne Modulbauweise erlaubt dabei eine effiziente Umsetzung mit klar strukturierten Grundrissen – ideal für die Vermietung.
Insgesamt ergibt sich eine Gesamtwohnfläche von ca. 338 m². Bei Vollvermietung lässt sich eine monatliche Kaltmiete von über ca. 3.250 € realisieren – ein starkes Argument für Anleger, die nach einem soliden, entwicklungsfähigen Objekt mit langfristiger Perspektive suchen. Ebenso attraktiv ist das Objekt für große Familien oder gemeinschaftliche Wohnformen.
Ein durchdachtes Projekt mit Charakter, Potenzial und Weitblick – bereit für die nächste Nutzungsgeneration.
Ausstattung
- Freistehendes Zweifamilienhaus mit geplantem Neubau im Paket
- Baujahr Bestand: ca. 1927
- Geplanter Neubau: ca. 2025
- Grundstücksgröße: ca. 842 m²
- Gesamtwohnfläche nach Erweiterung: ca. 338 m²
- Bestandswohnfläche: Erdgeschoss ca. 120 m², Obergeschoss ca. 80 m²
- Neubau mit drei genehmigten Wohnungen auf insgesamt ca. 138 m²
- Wohnung im Erdgeschoss und Obergeschoss: ca. 54,1 m²
- Dachgeschoss-Apartment: ca. 30 m²
- Hochwertige Einbauküche mit Marken-Geräten im Bestand enthalten
- Tageslichtbad mit Badewanne, Dusche & Bidet
- Bodenbeläge: Parkett, Laminat & Fliesen
- Kunststofffenster mit Zweifachverglasung
- Dezentrale Wärmepumpen
- Teilunterkellert mit Abstellfläche
- Pflegeleicht angelegter Garten in Südausrichtung
- Attraktives Vermietungspotenzial
- Bestand: monatliche Kaltmiete von ca. 950 € + 600 €
- Neubau: monatliche Kaltmiete von ca. 650 € + 650 € + 400 €
- Gesamtpotenzial bei Vollvermietung über ca. 3.250 € Kaltmiete im Monat
- Ideal für Mehrgeneratioswohnen, Eigennutzer und Kapitalanleger
- Seltene Kombination aus Bestand und Neubau in stadtnaher Lage
Lage
Das angebotene Zweifamilienhaus mit Erweiterungspotenzial befindet sich in bevorzugter Wohnlage von Bremen-Burgdamm, einem gewachsenen Stadtteil im Bremer Norden, der besonders durch seine ruhige Umgebung, die gute Infrastruktur und das naturnahe Wohngefühl überzeugt.
Das direkte Wohnumfeld ist geprägt von gepflegten Ein- und Zweifamilienhäusern, durchgrünten Grundstücken und einer angenehmen Nachbarschaft – ein ideales Umfeld für Familien, Paare oder Menschen mit dem Wunsch nach einem ruhigen Lebensmittelpunkt in stadtnaher Lage.
Zahlreiche Einkaufsmöglichkeiten sind bequem erreichbar: Der nächstgelegene Supermarkt befindet sich nur ca. 400 m entfernt, weitere Geschäfte des täglichen Bedarfs – wie Bäcker, Apotheken und Drogerien – sind ebenfalls innerhalb weniger Minuten zu Fuß oder mit dem Fahrrad erreichbar.
Ein großes Nahversorgungszentrum in Bremen-Vegesack ist nur ca. 2 km entfernt und bietet ein breites Einzelhandelsangebot, Restaurants, Cafés sowie Wochenmärkte.
Auch Bildungseinrichtungen befinden sich im direkten Umfeld: Eine Grundschule liegt in nur ca. 600 m Entfernung, mehrere weiterführende Schulen sowie Kindergärten sind in einem Umkreis von ca. 1 km vorhanden. Damit eignet sich die Lage besonders gut für Familien mit schulpflichtigen Kindern.
Die Verkehrsanbindung ist hervorragend: Die nächste Bushaltestelle liegt nur ca. 350 m entfernt und ermöglicht eine zügige Anbindung an das Zentrum von Vegesack oder zur Haltestelle Bremen-Burg. Von dort aus fährt die NordWestBahn in ca. 18 Minuten direkt zum Bremer Hauptbahnhof. Auch mit dem Auto profitieren Sie von kurzen Wegen: Die A270 erreichen Sie in ca. 3 Minuten Fahrzeit, die Bremer Innenstadt in ca. 20–25 Minuten – je nach Tageszeit.
Naturfreunde und aktive Menschen kommen ebenfalls auf ihre Kosten: Der nahegelegene Burgdammer Park, das idyllische Auetal oder das Naturschutzgebiet Werderland laden zu ausgedehnten Spaziergängen, Joggingrunden oder Fahrradtouren ein. Der Lesumhafen oder das Weserufer bei Vegesack sind ebenfalls nur wenige Minuten entfernt und bieten zusätzliche Freizeitqualität am Wasser.
Eine Lage, die urbanes Leben und naturnahe Wohnqualität vereint – mit sehr guter Erreichbarkeit, familienfreundlicher Infrastruktur und vielfältigen Entwicklungsmöglichkeiten.
28717 Bremen, Deutschland (auf Google Maps ansehen)