28259 Bremen, Reihenhaus zum Kauf
Kontaktdaten
-
NameFrau Perschia Zandi
-
PositionImmobilienkauffrau
-
FirmaSchichtel & Partner Immobilien
-
AnschriftWachmannstraße 73
28209 Bremen -
E-Mail
-
E-Mail
-
Telefon
-
Telefon
-
Mobil
Objektdaten
-
Objekt-IDSP712D
-
ObjekttypenHaus, Reihenhaus
-
Adresse28259 Bremen
-
Wohnfläche ca.97 m²
-
Nutzfläche ca.45 m²
-
Grundstück ca.120 m²
-
Zimmer4
-
Schlafzimmer3
-
Badezimmer1
-
Terrassen1
-
HeizungsartZentralheizung
-
Wesentliche EnergieträgerGas, Solar
-
Baujahr1959
-
Zustandgepflegt
-
Käuferprovision3,57 % (inkl. 19,00 % MwSt.) vom Käufer
-
Kaufpreis249.000 EUR
Ausstattung / Merkmale
- ✓ Terrasse
Energieausweis
-
EnergieausweistypBedarfsausweis
-
Gültig bis06.01.2036
-
GebäudeartWohngebäude
-
Baujahr lt. Energieausweis2010
-
PrimärenergieträgerErdgas leicht
-
Endenergiebedarf103,30 kWh/(m²·a)
-
EnergieeffizienzklasseD
Objektbeschreibung
Beschreibung
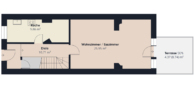
Ruhig gelegen, familienfreundlich strukturiert und durchdacht modernisiert präsentiert sich dieses charmante Reihenmittelhaus aus dem Baujahr ca. 1959, das eine gelungene Verbindung aus gepflegter Wohnqualität, solider Bausubstanz und zukunftsorientierter Energieausstattung bietet. Auf einer Wohnfläche von ca. 97 m² sowie zusätzlichen ca. 45 m² Nutzfläche erstreckt sich das Objekt auf drei Wohnetagen und einem Grundstück von rund 120 m², das mit liebevoll angelegten Grünflächen und einem pflegeleichten Garten überzeugt.
Schon beim Betreten wird deutlich, dass sich das Haus und die Außenanlagen in einem äußerst ansprechenden Gesamtzustand befinden und seit ca. 2000 laufend und aufwändig saniert wurden.
Ein offener Wohn- und Essbereich mit angrenzendem Wintergarten bildet das Herzstück des Erdgeschosses und schafft ein helles, einladendes Ambiente, das sich ideal für gesellige Stunden oder erholsame Abende eignet. Große Fensterflächen sorgen für ein angenehmes Raumgefühl und lassen viel Tageslicht in den Wohnbereich. Die gepflegte Einbauküche inklusive Marken-Elektrogeräten ist im Kaufpreis enthalten und bietet funktionale Arbeitsbereiche sowie ausreichend Stauraum. Ein weiß gefliestes Duschbadezimmer ergänzt das Erdgeschoss und präsentiert sich in einem gepflegten, zeitlosen Zustand.
Helle Schlafzimmer mit idealem Schnitt erwarten Sie im Obergeschoss und bieten vielfältige Nutzungsmöglichkeiten für Familien, Paare oder Homeoffice. Ein zusätzliches Gäste- oder Arbeitszimmer im vollständig ausgebauten Dachgeschoss erweitert den Wohnkomfort und macht die Immobilie besonders flexibel nutzbar. Robuste Holz-Zimmertüren, Laminat-, Kork- und Fliesenböden sowie zweifach verglaste Kunststofffenster aus ca. 2007 unterstreichen den gepflegten und wertigen Gesamteindruck.
Moderne Haustechnik sorgt für effiziente und zuverlässige Versorgung. Eine Vaillant-Gaszentralheizung aus ca. 2010 bildet die Grundlage der Wärmeversorgung, ergänzt durch robuste Kupferrohre und eine zeitgemäße dreiadrige Elektrik mit FI-Schutzschalter.
Ein 300-Liter-Warmwasserspeicher bietet zusätzlichen Komfort. Die Solvis-Solaranlage auf dem Dach sowie das Balkonkraftwerk aus 2025 ermöglichen eine nachhaltige und kostenschonende Energiegewinnung. Das Dach wurde aufwändig isoliert und trägt damit zu einem energieeffizienten Wohnklima bei.
Ein Vollkeller mit viel zusätzlicher Abstellfläche bietet praktischen Stauraum und vielseitige Nutzungsmöglichkeiten. Die Terrasse mit Südwestausrichtung und elektrischer Markise lädt zum Entspannen ein und bietet zusammen mit dem liebevoll angelegten Garten einen idyllischen Rückzugsort im Freien. Ein eigenes Gartenhäuschen mit Elektroanschluss ergänzt das Angebot. Die erneuerte Außentreppe sowie die ebenfalls erneuerte Hauseingangstür aus ca. 2007 runden das gepflegte Gesamtbild ab.
Ein Zuhause, das moderne Ausstattung, gepflegten Wohnkomfort und nachhaltige Energieeffizienz vereint und langfristig überzeugt.
Ausstattung
- Reihenmittelhaus mit Terrasse, Garten und PV
- Baujahr: ca. 1959
- Wohnfläche: ca. 97 m²
- Nutzfläche: ca. 45 m²
- Grundstücksfläche: ca. 120 m²
- Zimmeranzahl: 4
- Geschossanzahl: 3
- Ansprechender Gesamtzustand des Hauses und der Grünanlagen
- Aufwändige Sanierung seit ca. 2000
- Offener Wohnbereich mit Wintergarten
- Helle Schlafzimmer mit idealem Schnitt
- Zusätzliches Gäste- oder Arbeitszimmer im Dachgeschoss
- Gepflegte Einbauküche inklusive Marken-Elektrogeräten im Preis enthalten
- Weiß gefliestes Duschbadezimmer
- Bodenbeläge: Laminat, Kork und Fliesen
- Robuste Holz-Zimmertüren
- Zweifach verglaste Kunststofffenster von ca. 2007
- Erneuerte Hauseingangstür von ca. 2007
- Größtenteils Rollläden vorhanden
- Effiziente Vaillant-Gaszentralheizung von ca. 2010
- Solvis-Solaranlage auf dem Dach
- Balkonkraftwerk von 2025 vorhanden
- Eigener Warmwasserspeicher mit 300 Litern Volumen
- Robuste Kupferrohre von ca. 2000
- Dreiadrige Elektrik mit FI-Schutzschalter von ca. 2000
- Dach aufwändig isoliert
- Dachboden bereits vollständig ausbaut
- Vollkeller mit viel zusätzlicher Abstellfläche
- Terrasse mit Südwestausrichtung und elektrischer Markise
- Liebevoll angelegter und pflegeleichter Garten
- Eigenes Gartenhäuschen mit Elektroanschluss
- Erneuerte Außentreppe von ca. 2007
- Ruhige und zugleich gut angebundene Lage
Lage
Dieses ruhig gelegene Einfamilienhaus befindet sich im beliebten Bremer Stadtteil Huchting, einer gewachsenen Wohngegend im Südwesten der Hansestadt, die sich durch ihre gute Infrastruktur und die Nähe zur Natur auszeichnet.
Besonders Familien, Pendler und Ruhesuchende wissen die Kombination aus städtischem Komfort und ländlicher Atmosphäre zu schätzen.
Huchting ist geprägt von einer Mischung aus Einfamilienhäusern, gepflegten Mehrparteienhäusern und großzügigen Grünflächen.
Die Umgebung vermittelt eine angenehme, nachbarschaftliche Atmosphäre, die zum Wohlfühlen einlädt. Alteingesessene Familien und junge Zugezogene bilden hier eine lebendige und zugleich bodenständige Gemeinschaft.
Ein zentrales Highlight der Lage ist das fußläufig erreichbare Roland-Center – eines der größten Einkaufszentren im Bremer Süden.
Hier finden sich neben zahlreichen Einzelhandelsgeschäften auch Supermärkte, Drogerien, Restaurants und Cafés für den täglichen Bedarf.
Direkt daneben befindet sich ein modernes Sanitätshaus, das eine komfortable medizinische Nahversorgung ergänzt.
Für den Nachwuchs ist mit Kitas, Grundschulen und weiterführenden Schulen im Umfeld ebenfalls bestens gesorgt. Zahlreiche Spielplätze, Sportvereine sowie Freizeitangebote machen den Stadtteil auch für junge Familien besonders attraktiv.
Die Anbindung an den öffentlichen Nahverkehr ist hervorragend: In unmittelbarer Nähe zur Immobilie befinden sich Bus- und Straßenbahnhaltestellen, die eine schnelle Verbindung zur Bremer Innenstadt sowie zu umliegenden Stadtteilen gewährleisten.
Die Straßenbahnlinie 1 fährt direkt bis in die City, während verschiedene Buslinien den Nahbereich abdecken. Auch mit dem Auto sind die A281 sowie die B75 gut erreichbar, was Pendlern zusätzliche Flexibilität bietet.
Neben der urbanen Infrastruktur punktet Huchting mit seiner Nähe zur Natur: Der Sodenmattsee, weitläufige Felder und Spazierwege laden zu erholsamen Momenten im Freien ein – sei es für Sport, Spaziergänge mit dem Hund oder ruhige Stunden in der Natur.
Die Kombination aus praktischer Lage, vielfältigen Einkaufsmöglichkeiten, guter Anbindung und naturnaher Umgebung macht Huchting zu einem attraktiven Wohnort für alle, die ruhig, aber dennoch gut angebunden wohnen möchten.
Überzeugen Sie sich gerne selbst von dieser charmanten Wohnlage im Bremer Süden.
28259 Bremen, Deutschland (auf Google Maps ansehen)
















