28203 Bremen, Reihenmittelhaus zum Kauf
Kontaktdaten
-
NameFrau Franziska Wehlers
-
PositionImmobilienkauffrau
-
FirmaSchichtel & Partner Immobilien
-
AnschriftWachmannstraße 73
28209 Bremen -
E-Mail
-
Telefon
-
Telefon
-
Mobil
Objektdaten
-
Objekt-IDSP702F
-
ObjekttypenHaus, Reihenmittelhaus
-
Adresse28203 Bremen
-
Wohnfläche ca.170 m²
-
Nutzfläche ca.5 m²
-
Grundstück ca.104 m²
-
Zimmer7
-
Schlafzimmer5
-
Badezimmer3
-
Terrassen1
-
HeizungsartZentralheizung
-
Wesentlicher EnergieträgerGas
-
Baujahr1904
-
Zustandgepflegt
-
Statusvermietet
-
Käuferprovision7,14 % (inkl. 19 % MwSt) vom Käufer
-
Kaufpreis679.000 EUR
Ausstattung / Merkmale
- ✓ Kamin
- ✓ Keller
- ✓ Terrasse
Energieausweis
-
EnergieausweistypBedarfsausweis
-
Gültig bis27.01.2036
-
GebäudeartWohngebäude
-
Baujahr lt. Energieausweis2021
-
PrimärenergieträgerGas
-
Endenergiebedarf128,53 kWh/(m²·a)
-
EnergieeffizienzklasseD
Objektbeschreibung
Beschreibung
Dieses vermietete Reihenmittelhaus aus dem Baujahr ca. 1904 verbindet den Charme gewachsener Bausubstanz mit einem über viele Jahre hinweg gepflegten und modernisierten Gesamtzustand.
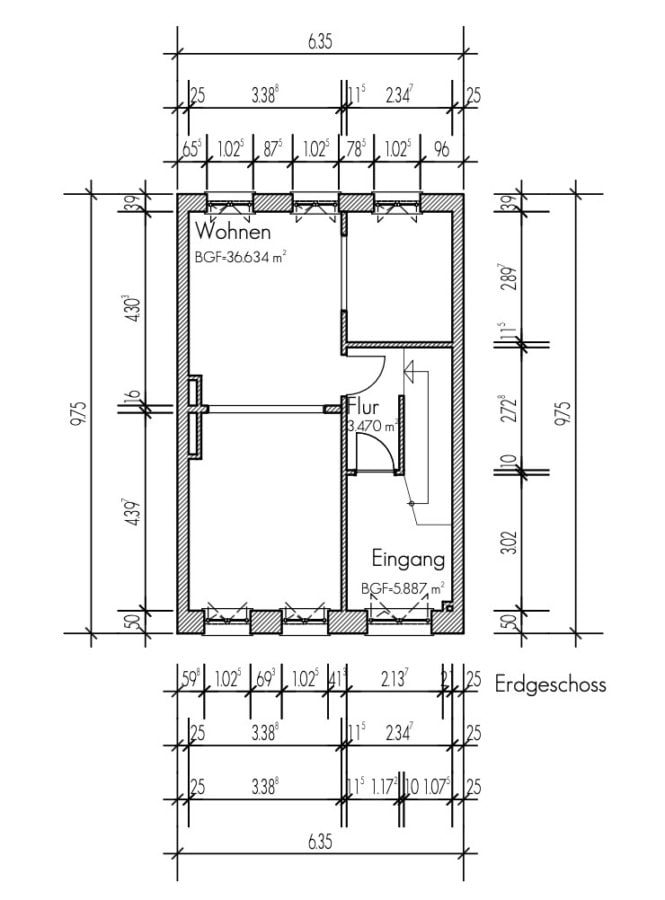
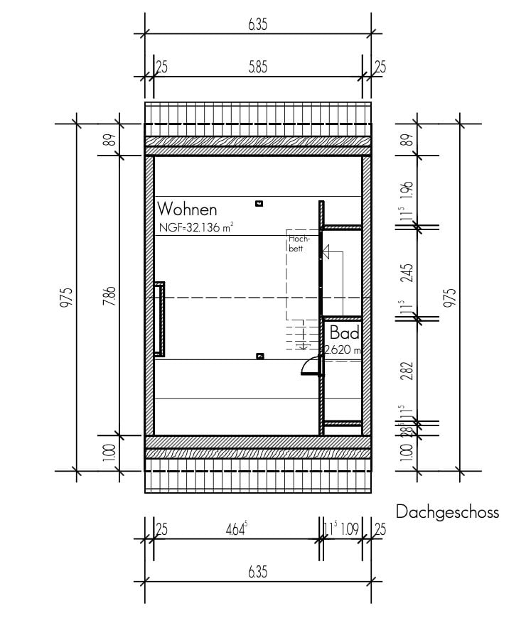
Auf ca. 170 m² Wohnfläche stehen insgesamt sieben Zimmer zur Verfügung, ergänzt durch ca. 5 m² Nutzfläche sowie einen vollständig ausgebauten Vollkeller. Das Grundstück umfasst ca. 104 m² und bietet zur ruhigen Rückseite einen liebevoll angelegten, pflegeleichten Außenbereich mit Terrasse und Teich.
Bereits beim Betreten wird die angenehme Wohnatmosphäre spürbar. Großzügige Raumproportionen, klassische Grundrisse und ein stimmiges Zusammenspiel aus Altbaucharakter und zeitgemäßer Ausstattung prägen das Erscheinungsbild.
Mittelpunkt des Hauses ist der offen gestaltete Wohnbereich, der durch einen Kaminofen zusätzlich an Wärme und Behaglichkeit gewinnt. Gerade in den kühleren Monaten entsteht hier ein besonders wohnliches Ambiente. Großzügige Fensterflächen sorgen für viel Tageslicht und ein freundliches Raumgefühl.
Mehrere helle Schlafzimmer mit gut durchdachtem Schnitt bieten vielseitige Nutzungsmöglichkeiten, sowohl für Familien als auch für Paare oder Wohngemeinschaften. Ergänzt wird das Raumangebot durch ein weiteres Gäste- oder Arbeitszimmer, das flexibel genutzt werden kann. Unterschiedliche Bodenbeläge aus Laminat, Fliesen, Terrazzo, Teppich und Parkett verleihen den Räumen Individualität und unterstreichen den Charakter des Hauses.
Im Sanitärbereich steht ein weiß gefliestes Vollbad zur Verfügung. Zusätzlich sind weitere Duschbäder mit Fenster vorhanden, von denen eines ca. 2017 umfassend saniert wurde. Auch technisch präsentiert sich die Immobilie in einem soliden und zeitgemäßen Zustand.
Zweifach verglaste Holz- und Kunststofffenster von ca. 1980, ca. 2007 und ca. 2013 sorgen für eine gute Wärmedämmung. Eine effiziente Gas-Zentralheizung von ca. 2021 übernimmt die Wärmeversorgung. Robuste Kupferrohre, eine dreiadrige Elektrik mit FI-Schutzschalter sowie weiße Holz-Zimmertüren runden die Ausstattung stimmig ab.
Das Dach wurde gedämmt und ausgebaut und schafft zusätzliche, gut nutzbare Wohnfläche. Umfangreichere Sanierungen und Renovierungsmaßnahmen erfolgten ca. 2017 und tragen sichtbar zum gepflegten Gesamtzustand bei.
Der ausgebaute Vollkeller bietet nicht nur viel zusätzliche Abstellfläche, sondern eröffnet vielfältige Nutzungsmöglichkeiten für Vorräte, Hobby oder Hauswirtschaft. Dadurch wird der praktische Nutzwert des Hauses spürbar erweitert und der Alltag angenehm entlastet.
Die Immobilie ist derzeit vermietet. Die monatliche Kaltmiete beträgt ca. 1.610 €.
Insgesamt handelt es sich um ein charaktervolles Reihenmittelhaus mit stabiler Vermietung, solider Ausstattung und einer gelungenen Verbindung aus historischem Flair und moderner Technik.
Ausstattung
- Vermietetes Altbremer-Reihenmittelhaus mit Terrasse
- Baujahr: ca. 1904
- Wohnfläche: ca. 170 m²
- Nutzfläche: ca. 5 m²
- Grundstücksfläche: ca. 104 m²
- Zimmeranzahl: 7
- Gepflegter Gesamtzustand des Hauses und der Außenanlage
- Offener Wohnbereich mit charmanten Kaminofen
- Helle Schlafzimmer mit idealem Schnitt
- Zusätzliches Gäste- oder Arbeitszimmer
- Weiß gefliestes Vollbad mit Waschmaschinenanschluss
- Zusätzliche Duschbäder mit Fenster, eines davon ca. 2017 saniert
- Bodenbeläge: Laminat, Fliesen, Holzdielen Terrazzo, Teppich, Parkett
- Originale weiße Holz-Zimmertüren
- Zweifach verglaste Holz- und Kunststofffenster von ca. 1980, ca. 2007 und ca. 2013
- Effiziente Gas-Zentralheizung von ca. 2021 inklusive Durchlauferhitzer
- Robuste Kupferrohre und dreiadrige Elektrik mit FI-Schutzschalter vorhanden
- Gedämmtes und ausgebautes Dach
- Aufwändige Sanierung oder Renovierungen von ca. 2017
- Ausgebauter Vollkeller mit viel zusätzlicher Abstellfläche
- Monatliche Kaltmiete von ca. 1.610 € zuzüglich Nebenkosten
- Liebevoll angelegter und pflegeleichter Außenbereich zur Rückseite
Lage
Der Stadtteil Ostertor gehört zu den lebendigsten und charakterstärksten Quartieren Bremens. Geprägt von historischen Altbauten, kleinen Plätzen und einer gewachsenen Kulturszene verbindet diese Lage urbanes Leben mit einer spürbar persönlichen Note.
Wer hier durch die Straßen schlendert, merkt sofort, dass dieser Stadtteil seinen ganz eigenen Charakter hat. Die charmanten Ecken, kleinen Unregelmäßigkeiten und das lebendige Nebeneinander von Alt und Neu verleihen dem Viertel seinen unverwechselbaren Reiz.
Zahlreiche Cafés, Bars, Restaurants und kleine Läden prägen das Straßenbild und sorgen für eine hohe Aufenthaltsqualität. Kreative Konzepte, individuelle Geschäfte und traditionsreiche Betriebe liegen oft nur wenige Schritte voneinander entfernt.
Das Viertel lebt von seiner Vielfalt und von Menschen, die das Stadtleben bewusst genießen möchten. Wochenmärkte, Galerien, Kinos und kulturelle Veranstaltungen sind fester Bestandteil des Alltags und machen Ostertor zu einem beliebten Treffpunkt weit über die Stadtteilgrenzen hinaus.
Die Nähe zur Weser ist ein weiterer Pluspunkt. Spaziergänge entlang des Osterdeichs, sportliche Aktivitäten oder entspannte Stunden im Grünen lassen sich unkompliziert in den Alltag integrieren.
Gerade in den Sommermonaten wird die Umgebung zu einem offenen Wohnzimmer unter freiem Himmel.
Gleichzeitig ist die Bremer Innenstadt schnell erreichbar, sei es zu Fuß, mit dem Fahrrad oder mit öffentlichen Verkehrsmitteln. Straßenbahn- und Buslinien bieten eine sehr gute Anbindung in alle Richtungen und machen das Viertel auch für Berufspendler attraktiv.
Infrastrukturell zeigt sich Ostertor hervorragend aufgestellt. Einkaufsmöglichkeiten für den täglichen Bedarf, Ärzte, Apotheken, Schulen und Kindergärten befinden sich in unmittelbarer Nähe.
Kurze Wege erleichtern den Alltag und schaffen ein hohes Maß an Lebensqualität. Trotz der zentralen Lage finden sich ruhige Seitenstraßen und geschützte Wohnbereiche, die Rückzug und Entspannung ermöglichen.
Ostertor steht für ein urbanes Lebensgefühl, das Authentizität, kulturelle Vielfalt und eine ausgezeichnete Lage vereint. Hier trifft historisches Flair auf modernes Stadtleben, Nachbarschaft auf Weltoffenheit und Dynamik auf Gelassenheit.
Ein Stadtteil für Menschen, die das Besondere suchen und ein Umfeld schätzen, das jeden Tag neue Eindrücke bietet und sich dennoch vertraut anfühlt.
Überzeugen Sie sich gerne bei einem persönlichen Besichtigungstermin von der ausgezeichneten und zentralen Lage dieses einzigartigen Hauses.
28203 Bremen, Deutschland (auf Google Maps ansehen)


















